50 лет Октября ул., 179в1
kursk@kotel-kv.ru
8 (800) 551-70-98
Бесплатно по России
Видео
Фото
Чертеж
Подберите необходимую мощность котла в несколько кликов!
Подбор котла
Уточните ваш запрос, если товар не подходит
Максимальная тепловая мощность, МВт
Топливо

Котел КВа 0.35 в Курске

Цена котла КВа 0.35 в Курске 418 000 рублей

Цена на котел КВа 0.35 с доставкой от 418 000 рублей с НДС
Условия поставки:
В наличии на складе
ТК по России и Казахстану
Безналичный расчет

Модель работает с отечественными горелками EMMA и импортными горелками UNIGAS, WEISTHAUPT, Oilon, ECOFLAM.

Также наш завод выпускает модели котлов данной мощности работающие с российскими горелками марки РГМГ, ГБЛ, ГМ, ГМГ, АПНД, ГГ. Их стоимость вы можете уточнить в отделе сбыта.

Котел для площади помещения от 2600 до 3900 м2, отапливаемый объем помещения от 8000 до 11500 м3. Температура 115 °С.

Технические характеристики
Комплект поставки
Дополнительно потребуются
Отзывы
Бренд HeatExpert Разряжение в топочной камере, Па (мм. вод. ст.) 20-40 (2-4)
Марка котла Котел КВа Г, Котел КВа ГН, Котел малой мощности, HeatExpert Расход уходящих газов, м³/ч 750
Вид топки Под горелку Температура уходящих газов, °C 161
Максимальная тепловая мощность, кВт 350 Тяга Принудительная
Максимальная тепловая мощность, МВт 0.35 Водяной объем котла, л 270
Максимальная тепловая мощность, Гкал 0.3 Объем топочной камеры, м³ 0.65
Диапазон регулирования мощности, кВт 40-100 Размер топочной камеры, длина*ширина*высота, мм 1700х550х700
Топливо Газ Присоединительные размеры по водяному тракту, Ду 65
Низшая теплота сгорания топлива ГАЗ, кКал/нм³ 9400 Присоединительные размеры газохода уходящих газов, ширина*высота / сечение, мм/м² 350х150/0.05
Низшая теплота сгорания топлива ДИЗЕЛЬ, кКал/кг 10200 Размеры корпуса котла, длина*ширина*высота, погрешность ± 50,, мм 1930х760х1305
Низшая теплота сгорания топлива МАЗУТ, кКал/кг 9260 Габаритные размеры котельного блока, длина*ширина*высота, мм 2160х940х1405
КПД (ГАЗ), не менее, % 91.4 Масса, кг 1300
КПД (ДИЗЕЛЬ), не менее, % 91.6 Тип котла Водогрейный, Промышленный
КПД (МАЗУТ), не менее, % 91.4 Тип отопительного котла Газовый
Расход топлива среднечасовой за отопительный сезон, кг/ч 19 Количество контуров Одноконтурный
Расход топлива при максимальной нагрузке котла (ГАЗ), м³/ч 35 Размещение Напольный
Расход топлива при максимальной нагрузке котла (ДИЗЕЛЬ), кг/ч 32 Тип камеры сгорания Закрытый
Расход топлива при максимальной нагрузке котла (МАЗУТ), кг/ч 35 Управление Электронное
Расход условного топлива, кг/ч 46 Принцип работы газового котла Конвекционный
Отапливаемая площадь, м² 2600-3900 Энергонезависимый нет
Отапливаемый объем, м³ 8000-11500 Тип питания Трехфазное
Давление рабочей среды, МПа (кгс/cм²) 0.3-0.6 Встроенный циркуляционный насос нет
Расход теплоносителя среды, м³/ч 12 Встроенный расширительный бак нет
Гидравлическое сопротивление при перепаде t, МПа (кгс/cм²) Не более 0.07 (0.7) Энергоэффективность Высокая
Аэродинамическое сопротивление, Па (мм. вод. ст.) 280

Это устройство работает со вспомогательным оборудованием, которое приобретается отдельно. Если вы хотите сразу узнать стоимость всей установки, добавьте заинтересовавшие вас позиции в корзину. Чтобы точно расчитать стоимость доставки до вашего объекта, укажите его адрес в корзине и оправьте нам заявку. Обычно мы отвечаем в течение дня.

Автоматика газового котла Автоматика котла КВа Г
Тип управляемого оборудования
Газовый котел КВа
205 000
Горелка газовая Emma Горелка газовая Emma 0.5
Топливо
Газ
Мощность горелки, КВт
500
277 000
Насос CHL Насос CHL 2-40 (0.55 кВт)
58 000
Газоход котла Газоход котла
Цена скоро
появится
Об этом товаре еще нет отзывов. Будьте первым!
Оставьте ваш отзыв
КВа котел 0.35
Котел КВа 0.35 водогрейный
Котел КВа 0.35 МВт промышленный
Изготовление котла КВа 0.35
Производство котла КВа 0.35

Котел КВа 0.35

Водогрейный котел КВа 0.35

Промышленный котел КВа 0.35 МВт

Котел КВа 0.35 изготовление

Котел КВа 0.35 производство

Водогрейный котел КВа 0.35 в г Курск. Характеристики:

  • мощность 350 КВт, 0,35 МВт, 0,3 ГКал;
  • температура нагрева воды 95 - 115 градусов;
  • топливо – газ; жидкое; дизель, мазут, отработанное масло;
  • горелка – импортная/отечественная;
  • давление не более 0.6 МПа;
  • отапливаемая площадь котла от 2600 до 3900 кв м, отапливаемый объем от 8000 до 11500 м3 (в зависимости минимальной температуры в регионе эксплуатации). Проверить или подобрать мощность котла КВа для Курска или любого другого города вы можете по ссылке.
  • устанавливается в котельных административных, производственных зданий, отопительных котельных ЖКХ и блочно модульных котельных.

Горелки водогрейных котлов КВа 0.35 МВт

Отечественные котлы КВа-0,35 могут работать с горелками импортного производства таких производителей Baltur (Балтур), UNIGAS (Юнигаз), WEISTHAUPT (Вестхаупт), Oilon (Ойлон), ECOFLAM (Экофлам), Ecostar (Экостар), а также с российскими горелками марки ЭММа, Илка (ILKA), РГМГ, ГБЛ, ГМ, ГМГ, АПНД, ГГ.

Устройство и описание отопительного котла 0.35 МВт на газовом топливе и жидком топливе

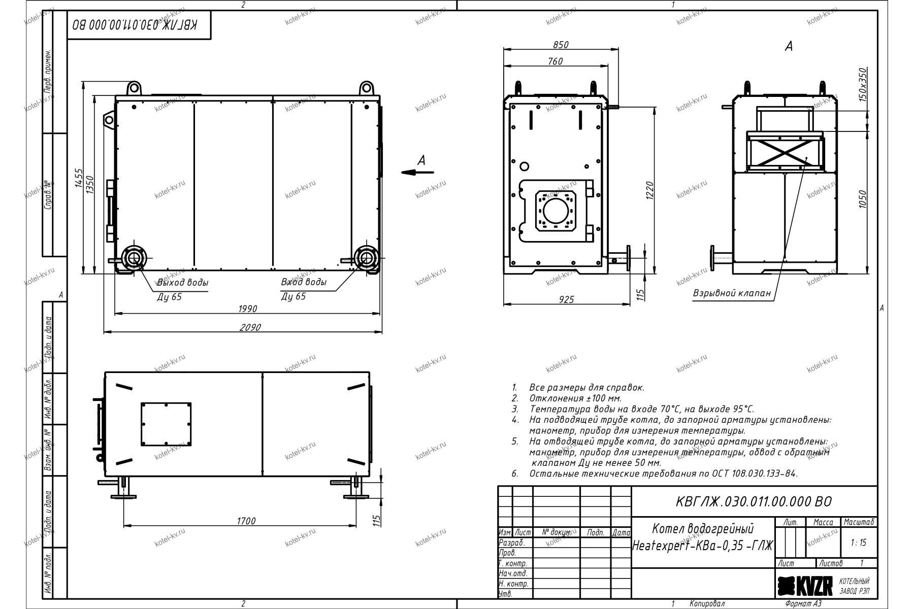
Чертеж котла КВа-0.4 Котел КВа-0.4 чертеж Конструкция отопительного промышленного котла водотрубная – водогрейный котел мощностью 0.35 МВт изготавливается из стальных труб диаметром 57 толщиной стенки 3- 3,5 мм сталь 10. Конвективная часть выполняется из трубы 32 сталь 20. Каркас изготавливается из профильной трубы, уголка и швеллера. Тепловая изоляция состоит из плиты ПТЭ. Наружная обшивка выполнена из стального листа. В котле установлен взрывной клапан.

Конструкция теплогенератора состоит из двух блоков - топки и конвективной части. На фронте котла КВа 0,35 изготавливается дверка для обслуживания топочной камеры.

Фронтальная плита котла КВа с гляделкой Фронтальная плита котла КВа с гляделкой

В дверке изготавливается отверстие с креплением под горелку. Для наблюдения за топочным процессом, имеется гляделка со смотровым стеклом. Горячие газы выходят из топки вверху топочной камеры и поступают в конвективные секции. Секции конвективных пакетов устанавливаются блоком. Горячие газы из котельного блока выходят в задней части сверху

Циркуляция промышленного котла КВа 0.35 обеспечивает быстрый нагрев воды и выход на требуемую мощность. Локальные перегревы отдельных зон поверхностей нагрева исключаются точностью производимых расчетов гидравлики. Дренажи и воздушники производят дренирование трубной системы от шлама и удаление скапливающего воздуха.

Горелочное устройство для данного котла Emma. В случае вашего намерения установить горелку иного производителя, необходимо произвести проверку совместимости по длине и ширине угла раскрытия факела горелки. При набросе факела горелки на стенки топки возможно прогорание труб. Котельный завод производит проверку и в случае необходимости может изменить габаритные размеры топки и котельного блока, под выбранную вами горелку.

Принцип работы водогрейного котла КВа 0.35

Топливо сгорает в топке. Горячие газы омывают трубную систему и нагревают воду до 115 градусов.

Циркуляция воды в котельном агрегате производится циркуляционным насосом. Для восполнения теплоносителя, теряемого при дренировании и в теплосети, производится подпитка подпиточным насосом.

Для горения топлива вентилятором в топку подается воздух. Дымовые газы проходят трубную систему котельного блока и поступают в газоходы котельной. При работе с импортными горелками под наддувом установка дымососа не требуется. После газоходов газы через дымовую трубу поступают в атмосферу.

Схема подключения газового котла КВа в котельной Схема подключения газового котла КВа в котельной Водогрейный котел КВа 0.35 для отопления должен быть укомплектован автоматикой. Заводская автоматика ограничивает предельно допустимые параметры работы, температуру и давление воды, минимальный расход теплоносителя, поддерживает минимально допустимое разряжение, регулирует работу горелки.

Водно-химический режим водогрейного котла должен быть организован в соответствии с требованиями руководства по эксплуатации и нормативной литературы по тепловым энергоустановкам и тепловым сетям. Для подбора водоподготовительной установки требуется провести химический анализ воды.

Все котельно-вспомогательное оборудование для подключения промышленного котла КВа-0.35 в Курске вы можете купить на нашем котельном заводе. Также наш завод оказывает услуги по проектированию, монтажу, шеф монтажу и пуско-наладке котельных.

Безопасность котла

Безопасная эксплуатация котла обеспечивается выполнением требований:

  • Инструкции по эксплуатации
  • Правил устройства и безопасной эксплуатации водогрейных котлов с температурой нагрева воды не выше 115 °С
  • Правил технической эксплуатации тепловых энергоустановок

Требования к помещениям котельной регламентируются СП 89.13330.35016 «Котельные установки»

Водогрейный котел КВа 0,35 должен управляться автоматикой безопасности, имеющей сертификат соответствия.

Одним из самых важных устройств, обеспечивающих безопасную эксплуатацию производственного водогрейного котла КВа, является предохранительный клапан. Расчет пропускной способности для каждой мощности приведен в паспорте котла.

Гарантии изготовителя

На заводе изготовителе промышленный котел КВа 0.35 подвергается гидравлическому испытанию давлением 0,9 МПа (9 кгс/см2).

Гарантийное обслуживание включает в себя бесплатное устранение скрытых заводских дефектов, замену деталей и узлов вышедших из строя в период гарантийного срока при условии монтажа и эксплуатации оборудования Покупателем в соответствии с его назначением, технической документацией, техническими нормами, правилами ввода в эксплуатацию и эксплуатации данного оборудования.

Производство котлов КВа 0.35 МВт на заводе осуществляется в срок от 10 до 20 рабочих дней.

Срок эксплуатации водогрейного котла 10 лет.

Чертежи котла КВа 0.35

Описание товара

    Купить котел ква 0.35 в Курске

    Для получения консультации укажите номер вашего телефона
    Смотреь обзор на

    Промышленный водогрейный котел КВа-0,35 ( - мощность 0,35 МВт; - топливо газ; - температура 115 градусов; - отапливаемая площадь* от 2600 до 3900 м2; - отапливаемый объем* от 8000 до 11500 м3 (* диапазон для самого холодного и самого теплого региона РФ)); - применение для отопления производства, жилых зданий, цехов, складов, промышленных предприятий, теплиц, гаражей, больниц, школ, садов.

    Подобрать мощность котла для вашего объекта
    Тип здания
    Регион
    Населенный пункт
    Вид топлива
    Наружный объем здания (м3)
    Отапливаемый подвал
    Показать подходящие котлы
    Патенты на котельное оборудование

    Патенты

    Смотреть все патенты
    Сертификаты Завода

    Сертификаты

    Смотреть все сертификаты
    Членство в СРО

    Допуски

    Смотреть все допуски
    Отзывы о продукции котельного завода

    Отзывы о продукции котельного завода

    Смотреть все письма
    Аттестованная технология сварки

    Аттестованная технология сварки

    Смотреть все аттестаты
    Цена с НДС
    418 000